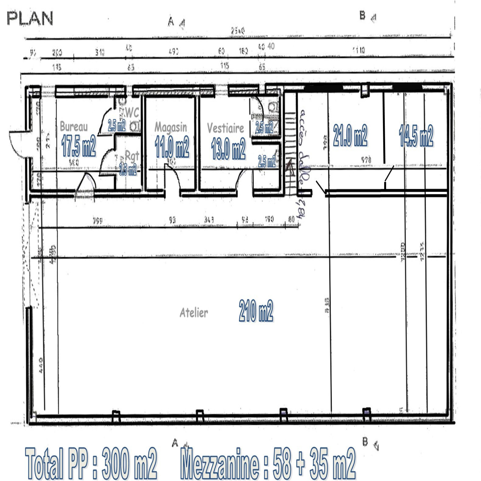
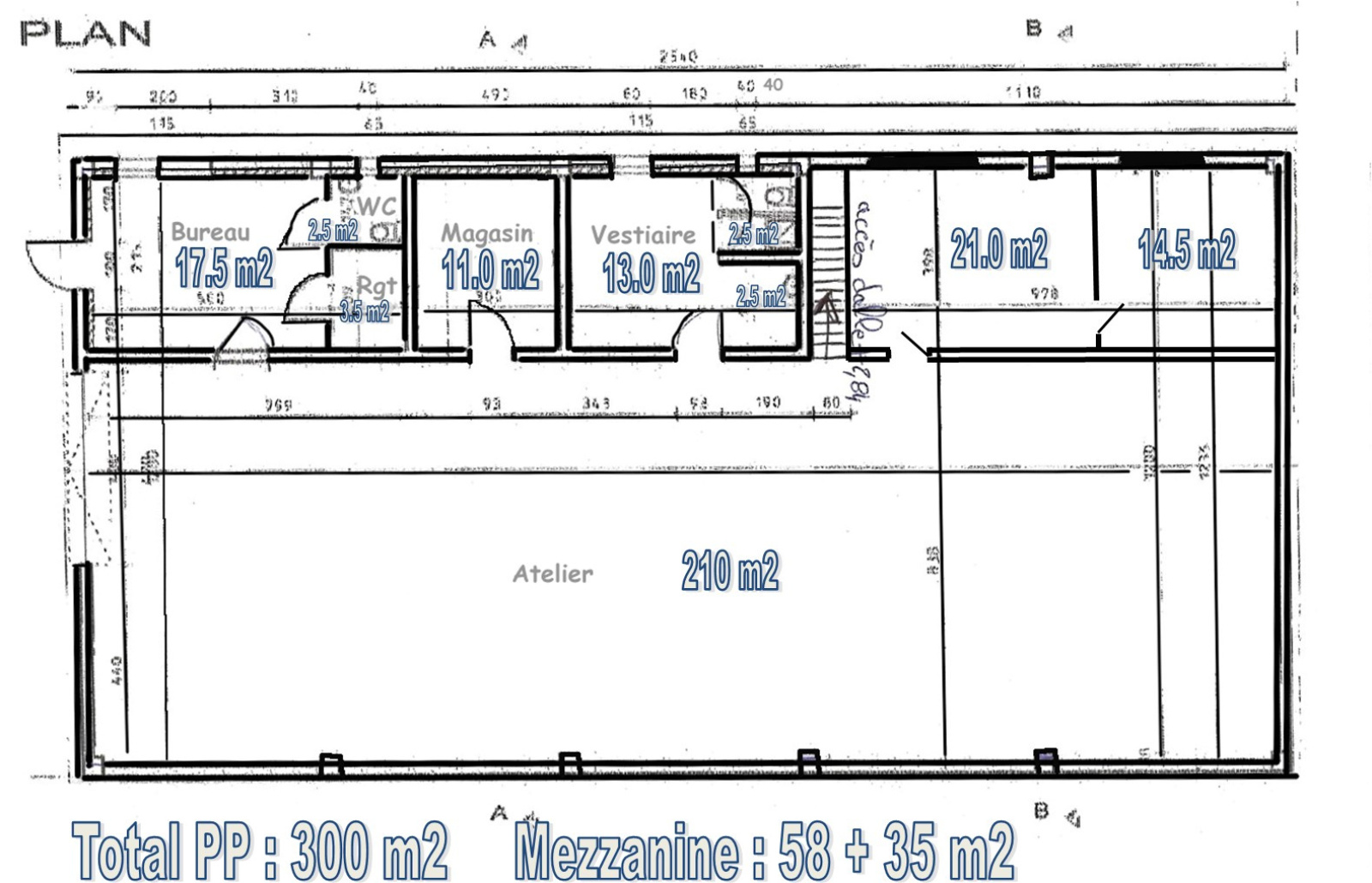
Gilles BUISSON vous propose à Peyrieu et en exclusivité ce vaste local d'activité achévé en 2009 et offrant environ 380 m2 agencés comme suit :
- de plain-pied : Bureau/accueil, cuisine, vestiare, 2 pièces, 2 wc, une douche et un atelier.
- en mezzanine : belle surface de 93 m2.
Terrain plat de 1500 m2 cadastré,
Construction béton et parpaing, isolation par l'intérieur, chauffage clim réversible + convecteurs + air pulsé, double vitrage, volet roulants, assainissement fosse septique aux normes, grande porte de garage sectionnelle.
Excellent état général à 10 minutes de Belley et Yenne, 35 minutes de Chambéry et Aix-les-Bains, 1 huere de Lyon, Grenoble, Annecy et Genève.
